FOR SALE BY TENDER – Large Commercial Premises Blackburn

FOR SALE BY TENDER - Large Commercial Premises Blackburn
Under Offer
Price: Under Offer
Tenure: Freehold
Business Rates: £3,950 in the current ratings list.
EPC: Grade E. Expires March 2036.
Area / Size
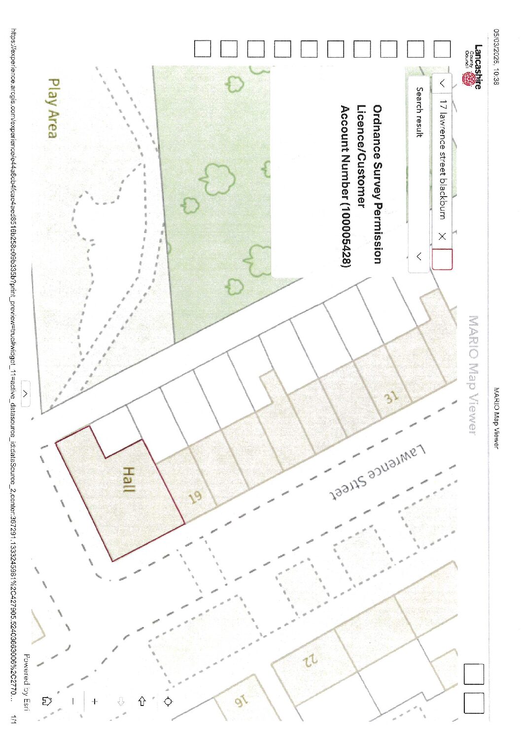
Location: Lawrence Street, Blackburn,
Listing ID: CO/BLK/LAW/CO14989
  • Freehold
  • Large end of terraced 4 storey building.
  • Ample on street parking.
  • Would suit a variety of uses subject to relevant planning consents being obtained.
  • Plans available to view, in our office.
  • Price: Offers Over £250,000.  All offers to be submitted in writing to Thomas V Shaw & Co Ltd by Midday on Friday 3rd April 2026.

General Comments  

These substantial premises comprise a brick and slate built end terraced property comprising of 4 storeys.  The premises are currently being used as a Community Centre/Hub and have ample on street parking.  All offers to be submitted in writing to Thomas V Shaw & Co Ltd by midday on Friday 3rd  April 2026.   

For more information on the property or an appointment to view.  Then please ring on 01254 53657 

The large accommodation benefits from upvc double glazing and the building is heated by two gas central heating boilers.
Price; For Sale by Tender.  Offers Over £250,000.  Closing date 3rd April at 12 Noon. 
Business Rates; Rateable Vale – £3950 in the current ratings list.  (Payable 49.9% – 55.5% of the annual rateable value).  Reliefs: small business, retail, hospitality and leisure properties may qualify for discounts.

*Tender Form is available from our office* 

 

Contact Us about this listing